安庆E网

搜索
楼主: 9111420

[装修日记] 江畔尚城蜕变记

  [复制链接]

0

收听

4

听众

1354

帖子

E粉明星

注册时间
2007-8-1
精华
0
 楼主| 发表于 2014-7-18 21:54:16 | 显示全部楼层
7月18日   开工第十三天 晴天
早上家里有事情  没有去房子  中午11点多才到   发现从水表到我家的进户管子没有给我包    于是马上打电话按照我的要求来包起来  下午去光彩买瓷砖  顺便买了地漏和角阀  明天就要试压了 所以要准备2个角阀  明天早上阔盛的代理商派人来试压   

交钥匙的时候发现移门有问题  早上物业8点多就打电话问我房子可有人 说是修门      中午过去以后发现门已经修好了   剩下来的就是空鼓的问题

今天也按照李工的强电弱电之间差20cm的要求  我来量了一下    基本上合格     然后在强电和弱电交界的地方用锡箔纸给包了起来  今天的照片不是很多   下午就去光彩买瓷砖和地漏角阀   

中午2点去了房子  发现水电工在把早上水表到进户的管子在重新给包了起来     我也顺手拿了包管子的材料   好厚    我在别人家看的包管子的材料都是黑色的单层的  这个是双层的     小丁说是包太阳能管子用的   所以厚  价格比单层的也贵一点  


从房子离开以后就去光彩买地漏和角阀  订瓷砖  到了光彩四期  发现上次在我帖子里面给我留地址的百佳五金  门口发现他家口贴着潜水艇地漏      于是走进他店里  看了他的地漏和价格   我发现他家的标价和淘宝的价格基本上差不多  我想着  估计还要杀价的空间  和老板娘谈了起来    老板娘听说是E网来的 也很热情的招待了我   由于明天要试压要角阀  所以今天就把角阀全部给买了  免得回头再跑一次  今天天好热啊  越来越热  想想把地漏也买了一下   我看了2款地漏   然后把手机拿着价格对比了一下  发现价格和天猫的旗舰店差不多  那肯定就在本地买了 第一个运费省了  第二个万一不合适可以拿来换  第三个质量应该有保证  老板承诺里面的地漏芯子5年之内坏了  那去直接换
于是买了8个角阀  4个地漏   付钱拿货走人    下次买五金的时候还去他店里看看
百佳五金和潜水艇.jpg
包管材料.jpg
角阀合影咯.jpg
强弱电距离.jpg
角阀地漏.jpg
地漏合影啦.jpg
回复 支持 反对

使用道具 举报

0

收听

5

听众

439

帖子

E粉明星

注册时间
2014-3-17
精华
0
发表于 2014-7-18 22:13:27 | 显示全部楼层
9111420 发表于 2014-7-18 21:54
7月18日   开工第十三天 晴天
早上家里有事情  没有去房子  中午11点多才到   发现从水表到我家的进户管子 ...

嘿嘿,我俩买的型号好像不太一样啊,我看潜水艇官网最便宜的时候就是189一套呢

我买的229一套{:soso_e118:},其实可以退回去重新买的,不过我不想再麻烦人家店主啦……

前一段其实还秒杀过三个九牧的地漏,一个9.9元{:soso_e113:},准备用在不重要的地方
欢迎访问绿地小家装修日记

http://www.aqlife.com/forum.php?mod=viewthread&tid=1841949&extra=page%3D
回复 支持 反对

使用道具 举报

5

收听

2

听众

483

帖子

E粉新星

注册时间
2013-10-31
精华
0
发表于 2014-7-18 22:50:22 | 显示全部楼层
9111420 发表于 2014-7-18 21:21
五金都是不包的哦   五金可以去光彩百佳五金看看  今天在他家买了 潜水艇的地漏和角阀 感觉价格还可以   ...

谢谢,到时候我也去百佳五金看看,再与网上比较一下。
回复 支持 反对

使用道具 举报

1

收听

3

听众

151

帖子

未认证商家

注册时间
2012-10-15
精华
0
QQ
发表于 2014-7-19 14:37:55 | 显示全部楼层
{:soso_e142:}欢迎欢迎
顶固五金安庆总代理(安庆百佳五金)顶固铰链、滑道、拉手,顶固指纹锁,淘宝网店“潜水艇地漏安庆店”潜水艇花洒,潜水艇洗菜盆,水龙头,潜水艇烟道止味阀,三角筏,潜水艇马桶防臭圈,5年质量保证,值得信赖.抽屉滑道,固特弹簧液压合页,精品拉手,保险柜,裤架,穿衣镜,好太太晾衣架,卡贝浴室挂件,家装五金,卫浴五金一站式采购.地
回复 支持 反对

使用道具 举报

0

收听

4

听众

1354

帖子

E粉明星

注册时间
2007-8-1
精华
0
 楼主| 发表于 2014-7-19 21:31:20 | 显示全部楼层
本帖最后由 9111420 于 2014-7-19 21:35 编辑

7月19日   开工第十四天 晴天  傍晚下雨了
昨天夜里人发烧了 早上装饰公司打电话说是早上阔盛的过来试压   我早上8点多就到了  师傅在打压了  一共打了半个小时  由于人在发烧  浑身没劲  看了一会走了  现场就没有拍照了  明天早上水电验收的时候再拍照  

注意:对于质保书一定要保管好  万一以后漏水的话  这个就是依据所以很重要
阔盛质保书.jpg
回复 支持 反对

使用道具 举报

0

收听

5

听众

439

帖子

E粉明星

注册时间
2014-3-17
精华
0
发表于 2014-7-19 22:03:01 | 显示全部楼层
9111420 发表于 2014-7-19 21:31
7月19日   开工第十四天 晴天  傍晚下雨了
昨天夜里人发烧了 早上装饰公司打电话说是早上阔盛的过来试压   ...

德国品牌,看起来比日丰的正规多了啊
欢迎访问绿地小家装修日记

http://www.aqlife.com/forum.php?mod=viewthread&tid=1841949&extra=page%3D
回复 支持 反对

使用道具 举报

0

收听

4

听众

1354

帖子

E粉明星

注册时间
2007-8-1
精华
0
 楼主| 发表于 2014-7-19 22:05:49 | 显示全部楼层
黑色曙光 发表于 2014-7-19 22:03
德国品牌,看起来比日丰的正规多了啊

今天打压的师傅说  日丰十分钟走人  伟星二十分钟走人   他们公司是三十分钟走人  具体是真的假的就不知道了  
回复 支持 反对

使用道具 举报

1

收听

3

听众

151

帖子

未认证商家

注册时间
2012-10-15
精华
0
QQ
发表于 2014-7-19 22:23:16 | 显示全部楼层
楼主,注意身体哦!休息休息
顶固五金安庆总代理(安庆百佳五金)顶固铰链、滑道、拉手,顶固指纹锁,淘宝网店“潜水艇地漏安庆店”潜水艇花洒,潜水艇洗菜盆,水龙头,潜水艇烟道止味阀,三角筏,潜水艇马桶防臭圈,5年质量保证,值得信赖.抽屉滑道,固特弹簧液压合页,精品拉手,保险柜,裤架,穿衣镜,好太太晾衣架,卡贝浴室挂件,家装五金,卫浴五金一站式采购.地
回复 支持 反对

使用道具 举报

0

收听

5

听众

439

帖子

E粉明星

注册时间
2014-3-17
精华
0
发表于 2014-7-19 22:43:28 | 显示全部楼层
9111420 发表于 2014-7-19 22:05
今天打压的师傅说  日丰十分钟走人  伟星二十分钟走人   他们公司是三十分钟走人  具体是真的假的就不知 ...

是真的,我试压那天和日丰的师傅理论了好久,最后搞满半个小时走的。
主要是客户太多,他们跑不过来
欢迎访问绿地小家装修日记

http://www.aqlife.com/forum.php?mod=viewthread&tid=1841949&extra=page%3D
回复 支持 反对

使用道具 举报

0

收听

4

听众

1354

帖子

E粉明星

注册时间
2007-8-1
精华
0
 楼主| 发表于 2014-7-20 23:06:54 | 显示全部楼层
本帖最后由 9111420 于 2014-7-20 23:20 编辑

7月20日   开工第十五天 晴天  
今天早上水电验收  
早上发现几个问题  然后一一整改了   
问了水电工丁师傅  昨天试压的情况    昨天试压30分钟    压力是10个的  这样的话  我就放心了  我昨天大概呆了30分钟   今天还特地说了试压时间的问题  他说肯定有30分钟的

早上装饰公司的王老板发现卫生间里面传的是2.5平方的线    结果他马上要求丁师傅给换成4个平方的线  因为我们但是的协议是 空调柜机一路是6平方的  厨房和卫生间的是4平方的  所以货不对板   马上整改  其他的都是一些细节上面的小问题
下面的照片会有整改前后的变化
保护盒.jpg
换线.jpg
增加保温管.jpg
增加黄腊管.jpg
增加锡箔纸.jpg
回复 支持 反对

使用道具 举报

0

收听

4

听众

1354

帖子

E粉明星

注册时间
2007-8-1
精华
0
 楼主| 发表于 2014-7-20 23:10:04 | 显示全部楼层
本帖最后由 9111420 于 2014-7-20 23:50 编辑

水电的心得
1.水电是隐蔽工程  尽量有时间多去看看  如果有什么不对的地方要及时指出来  马上就整改 这样的话 既不耽误师傅的时间 也不耽误自己的时间  也不会浪费过多的材料    就拿我自己举例:本来我是要求从水表到进户  全部都包上保温管的   但是前天早上我有事情没有过去  等我中午过去的时候  从水表到进户的管子已经做好了  没有包管子      当时大概是没有说  所以就没有包了  其他水管在没有安装的时候 包个管子 大概也就是需要30秒左右的时候  等我中午来的时候 我指出来了  这下麻烦了  必须重新保管  既浪费了 我的时间 也浪费了师傅的时间   所以说 如果有时间的话  在现场   是最好的
2.看了霏凡李工的帖子  才知道现在市场上面的线基本上都是有点缩水的   我个人建议的话  把线的平方数要稍微的留大一点   我柜机留了6个平方  厨房和卫生间留了4个平方  如果要装大功率的热水器建议是6个平方的 地线是2.5个平方  我灯线就留了1.5的平方的 现在LED的灯都是瓦数很低很节能的 所以就小了点
3.水试压的话  最少要半个小时以上  而且要10个压力  这点是原则的问题 不能含糊  如果到时候水出了问题那就是劳民伤财的事情了  也许还会殃及楼下  破坏邻里和谐  
4.网线是我自己提供的  所以我放的网络接口比较多大概有150米   从我上传的照片也可以看出来蓝色的弱电管子大概有10跟   为什么要放这么多了  现在是网络时代了  电视  电脑  电话 都可以用网线的  而且每个房间  必须要保证有1个网线   如果有飘窗的话  飘窗附件也要有一根网线   虽说现在WIFI很方便了  但是有线的始终比无线的好  稳定性更强    网线的话 最好买超六类带屏蔽的    一般家庭如果对网络要求不高的 就可以用0.5的无氧纯铜的 超五类非屏蔽的就可以了  但是线芯要达到标准的0.5的  还有水货的网线8跟线  4根是铜线  4跟是铝线  
5.热水管、煤气管之间的间距要大于30CM  我家的实际情况不行 厨房不行 大概只有20CM的间距  理想总是很美好 现实总是很残酷的
6.进盒线管带锁头保护(我家没有保护) 线盒敷设要平整 不用弯头 拐弯处要热弯或簧弯处理 接管处要用PVC胶水焊接  严格遵循先埋管后穿线制作原则  顶部不能埋管的地方要穿黄腊管保护 严禁裸埋电线  吊顶电线须固定
7.强弱电不可有接头(电视线要用分频器)  网线严禁接头
8.强弱电保护盒 早上王老板拿过来了  但是我听水电工小丁说 那个按上去好像对墙面不好 好像是开裂还是什么的吧 具体没有听清楚 所以今天就不装了 回头再咨询一些专业人士   我叫他把东西放在我这里  如果需要装的话  我再叫王老板过来挡一挡吧  
9.要找装修公司绘制精确线路图  而且最好拍成视频和照片的2种  这样对以后的其他设施的安装有着重要的依据  也是非常非常的重要的  我有一份视频  和照片  都存到电脑了 这样的话  静态动态都有




回复 支持 反对

使用道具 举报

0

收听

9

听众

112

帖子

E粉明星

注册时间
2014-2-15
精华
1
发表于 2014-7-21 09:09:33 | 显示全部楼层
9111420 发表于 2014-7-20 23:10
水电的心得
1.水电是隐蔽工程  尽量有时间多去看看  如果有什么不对的地方要及时指出来  马上就整改 这样 ...

这个总结的不错,网线我也用的是六类线。
回复 支持 反对

使用道具 举报

0

收听

4

听众

1354

帖子

E粉明星

注册时间
2007-8-1
精华
0
 楼主| 发表于 2014-7-21 12:35:18 | 显示全部楼层
月出东山 发表于 2014-7-21 09:09
这个总结的不错,网线我也用的是六类线。

从老师的帖子里面也学习到了 不少的东西  呵呵 向先行者学习
回复 支持 反对

使用道具 举报

0

收听

4

听众

1354

帖子

E粉明星

注册时间
2007-8-1
精华
0
 楼主| 发表于 2014-7-21 21:56:44 | 显示全部楼层
7月21日   开工第十六天 高温
水电结束了  今天瓦工师傅  继续来砌墙    当然也还是在墙上也挂了网   因为新墙要必须挂网的 防止开裂的   这点后面装修的朋友一定要注意了

下午2点联系物业来开空鼓   怪怪  开了不少个空鼓    我问了什么原因   物业说是剪力墙开槽子造成的  开了空鼓以后 发现里面混凝土没有空鼓  这点还是多少让我有点欣慰的   大概开了6个  里面都没有混凝土的空鼓   接着物业又说二期的质量比一期的质量好  又说二期400多家 300多家装潢了  谬哪家要找空鼓的  我是第一家   听的我真是不知道说什么好了  难道我就这么的难缠啊?   

本来空鼓是由施工方来修复的  但是施工方和物业沟通好了  由物业开空鼓   物业公司找了我的装饰公司王老板  叫王老板帮忙给贴个水泥 黄沙 贴个工钱       王老板也爽快的答应了   物业开好就走了  剩下来的事情就由瓦工师傅来砌起来  

今天还照了几张从水表到户内包管子的照片  如果讲究的朋友也可以和我一样  从水表开始包到家里     我的口号就是按照欧盟的标准来装修房子

还有就是大门口留了一个5孔和1个网线  为什么留这个2个东西   第一个5孔   我这个电梯大  很大邻居都把电瓶车放进电梯 然后在门口充电  我受到了启发也就留个5孔在门口   正好门口也要做鞋柜  这样冬天烘鞋也方便电    第二个是网线  我估计这个是用不到的了  我留个就是怕万一我不喜欢用电信的网络  可以在门口改其他的网络  不用破坏里面的线路  反正也要不到多少网线  
门口留的五孔和网线.jpg
开空鼓.jpg
墙面挂网.jpg
室内包管子.jpg
水表到进户.jpg
回复 支持 反对

使用道具 举报

1

收听

3

听众

151

帖子

未认证商家

注册时间
2012-10-15
精华
0
QQ
发表于 2014-7-21 22:15:00 | 显示全部楼层
{:soso_e100:}每天来看一下楼主写的东西。
顶固五金安庆总代理(安庆百佳五金)顶固铰链、滑道、拉手,顶固指纹锁,淘宝网店“潜水艇地漏安庆店”潜水艇花洒,潜水艇洗菜盆,水龙头,潜水艇烟道止味阀,三角筏,潜水艇马桶防臭圈,5年质量保证,值得信赖.抽屉滑道,固特弹簧液压合页,精品拉手,保险柜,裤架,穿衣镜,好太太晾衣架,卡贝浴室挂件,家装五金,卫浴五金一站式采购.地
回复 支持 反对

使用道具 举报

2

收听

2

听众

839

帖子

E粉明星

注册时间
2007-8-9
精华
0
发表于 2014-7-21 23:42:23 | 显示全部楼层
9111420 发表于 2014-7-20 23:06
7月20日   开工第十五天 晴天  
今天早上水电验收  
早上发现几个问题  然后一一整改了   

你家柜机用的是6平方的线,这个公司这确负责!我家是大维装的,只有柜机用的是4平方,其它用的都是2.5平方!跟我说,其它的不用,没办法,已经上了套子,后悔莫及啊!{:soso_e105:}
热爱祖国
回复 支持 反对

使用道具 举报

2

收听

24

听众

1951

帖子

E粉明星

注册时间
2010-8-8
精华
0
发表于 2014-7-22 17:56:23 | 显示全部楼层
09.jpg
户型很好

点评

好长时间没在网上看到你了。  发表于 2014-7-23 18:14
回复 支持 反对

使用道具 举报

0

收听

4

听众

1354

帖子

E粉明星

注册时间
2007-8-1
精华
0
 楼主| 发表于 2014-7-22 21:14:43 | 显示全部楼层

老师 很多年前就看见你在e网发布帖子了 最近貌似很忙 好像很少看见在网上发表高见了 今天能在我的帖子里面看见老师的回复 真的很高兴   老师画的图 我有点看不懂 希望如果有时间的话  可以发个短信给我 我好与老师多交流交流 谢谢了
回复 支持 反对

使用道具 举报

0

收听

4

听众

1354

帖子

E粉明星

注册时间
2007-8-1
精华
0
 楼主| 发表于 2014-7-22 21:16:10 | 显示全部楼层
7月22日   开工第十七天 高温  
今天温度太高了 加上昨天瓦工师傅和我说了 今天把砌的墙和卫生间地面给干干  所以今天就没有任何事情  休息一天
回复 支持 反对

使用道具 举报

0

收听

4

听众

1354

帖子

E粉明星

注册时间
2007-8-1
精华
0
 楼主| 发表于 2014-7-22 21:18:13 | 显示全部楼层
统一韩半岛 发表于 2014-7-21 23:42
你家柜机用的是6平方的线,这个公司这确负责!我家是大维装的,只有柜机用的是4平方,其它用的都是2.5平 ...

最主要的时候 在签订合同的时候  要把一些细节方面都在合同中写出来  这样的话 就没有什么可以扯皮的  如果不是很懂的情况下 可以多问  签合同的时候最好找个懂装修的朋友一起  这样在后期中就按照合同执行就可以了

回复 支持 反对

使用道具 举报

1

收听

3

听众

151

帖子

未认证商家

注册时间
2012-10-15
精华
0
QQ
发表于 2014-7-22 22:23:21 | 显示全部楼层
{:soso_e100:}
顶固五金安庆总代理(安庆百佳五金)顶固铰链、滑道、拉手,顶固指纹锁,淘宝网店“潜水艇地漏安庆店”潜水艇花洒,潜水艇洗菜盆,水龙头,潜水艇烟道止味阀,三角筏,潜水艇马桶防臭圈,5年质量保证,值得信赖.抽屉滑道,固特弹簧液压合页,精品拉手,保险柜,裤架,穿衣镜,好太太晾衣架,卡贝浴室挂件,家装五金,卫浴五金一站式采购.地
回复 支持 反对

使用道具 举报

0

收听

4

听众

1354

帖子

E粉明星

注册时间
2007-8-1
精华
0
 楼主| 发表于 2014-7-23 22:13:59 | 显示全部楼层
7月23日   开工第十八天 高温  
今天还是高温  瓦工师傅今天没有过来  说是朋友店等着开张  等着他去贴瓷砖  反正我也不急 慢工出细活 人与人之间多理解理解  正好我等的隔音棉还没有到  我家的下水管还没有包上隔音棉 个人建议如果卧室有卫生间的话 最好包个隔音棉  多少对楼上下来的水有一点的隔音作用  而且成本也是很低廉的  我这个是装饰公司在合同内的东西  
下午6点  跑去房子  怪怪  楼下好多 蜻蜓了   大概是要下大雨的节奏  好多年都没有看见蜻蜓了 估计是附近的草比较多   加上又要下雨的原因    由于时间匆忙  晚上还有饭局  去房子绕了一圈就走了  今天就没有拍照片了  也没有照片更新了
回复 支持 反对

使用道具 举报

0

收听

1

听众

244

帖子

未认证商家

注册时间
2014-3-15
精华
0
QQ
发表于 2014-7-24 09:20:38 | 显示全部楼层
恭喜恭喜!
帅丰-集成-环保灶-就是这么健康
咨询热线:0556-5566602 18855600818
安庆市开发区 光彩二期南翔电器1-2
回复

使用道具 举报

1

收听

1

听众

962

帖子

认证商家

注册时间
2010-10-6
精华
0
发表于 2014-7-24 11:16:20 | 显示全部楼层
路过,祝装修顺利!天热注意防暑啊
1:旗舰店舒怡国际家居城2楼B区8028号

电话:13966907991
回复 支持 反对

使用道具 举报

0

收听

4

听众

1354

帖子

E粉明星

注册时间
2007-8-1
精华
0
 楼主| 发表于 2014-7-24 17:22:41 | 显示全部楼层
7月24日   开工第十九天 中雨
早上没有下雨  跑去房子看看   昨天的蜻蜓  今天还在楼下飞  随即拍了2张照片     看样子 这个地方夏天蚊子不少  

师傅今天还在休息  上去看了一下  发现电梯坏了一台  于是和物业联系了  不知道物业可修好了  

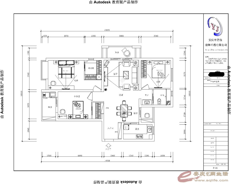
今天也没有什么照片可上传  传2张效果图和平面图了
效果图和平面图早就好了  就是一直没有找设计师拿电子版的  身上有一张打印出来的

本来还是给我画卧室的效果图  但是我的床桌子这些东西基本上不买新的话  所以就没有叫他画了  过几天把衣柜的效果图给我就可以了
手机拍的蜻蜓照片.jpg
江畔尚城客厅2_副本.jpg
江畔尚城客厅1_副本.jpg
平面图.jpg
回复 支持 反对

使用道具 举报

您需要登录后才可以回帖 登录 | 注册

本版积分规则

联系合作|手机版|手机APP|Archiver|

GMT+8, 2025-12-20 22:14 Powered by Discuz! X3.4

安庆E网生活网站 © 2001-2013 Comsenz Inc. ( 皖ICP备05012696号 )

QQ

安庆瑞易文化 地址:华茂1958-C7栋 联系电话:0556-5306667 联系邮箱:17779721@qq.com 互联网违法和不良信息举报电话和邮箱:0556-5306667 17779721@qq.com

皖公网安备 34080002000101号

    
快速回复 返回顶部 返回列表