安庆E网

搜索
查看: 9725|回复: 46

[设计交流] 寻找新房设计方案

  [复制链接]

0

收听

1

听众

211

帖子

E粉新星

注册时间
2007-1-12
精华
0
QQ
发表于 2014-3-23 18:59:35 | 显示全部楼层 |阅读模式
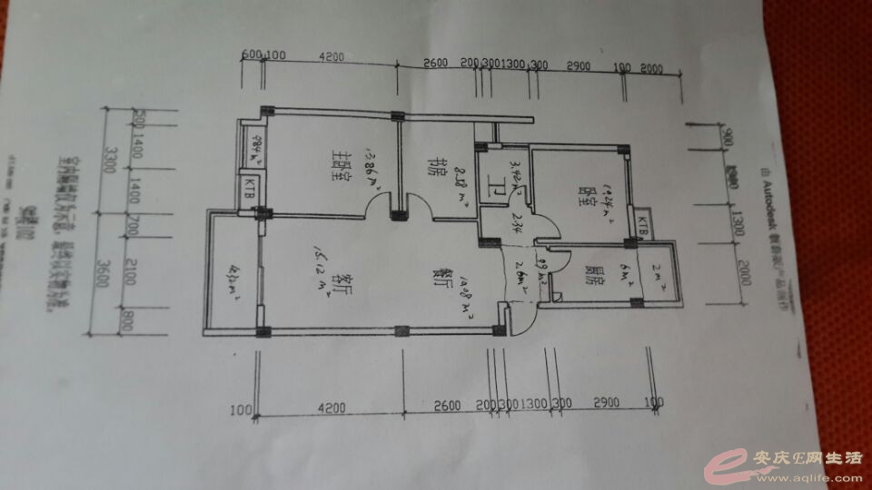
如题,面积88平方,小三房户型(见附图),要求简洁大方。客餐厅顶部简单造型,地面除厨房卫生间之外用实木地板,电视墙用墙纸造型,其它地方不贴墙纸。只求新房设计方案,不外包。如被采纳付设计费。如有方案,请留言。(已设仅作者可见)。

户型图

户型图
环保 便捷 品味 定制
科亦美多彩集成墙饰安庆营销中心
地址:安庆龙眠山路256号天柱山东路和龙眠山路交叉
回复

使用道具 举报

3

收听

1

听众

43

帖子

未认证商家

注册时间
2012-6-30
精华
0
QQ
发表于 2014-3-23 19:46:15 | 显示全部楼层
此帖仅作者可见
[em:3:]一个愉悦的空间、一种尊贵的生活、一方独享的天地,都在这里寻求最合适的表达!----安庆旺嘉装饰公

使用道具 举报

11

收听

5

听众

2246

帖子

认证商家

注册时间
2008-6-9
精华
0
QQ
发表于 2014-3-23 20:59:48 | 显示全部楼层
此帖仅作者可见

使用道具 举报

头像被屏蔽

4

收听

2

听众

427

帖子

禁止发言

注册时间
2012-6-4
精华
0
QQ
发表于 2014-3-23 21:00:01 | 显示全部楼层
提示: 作者被禁止或删除 内容自动屏蔽
签名被屏蔽

使用道具 举报

0

收听

1

听众

172

帖子

E粉新星

注册时间
2013-9-2
精华
0
QQ
发表于 2014-3-24 08:48:59 | 显示全部楼层
此帖仅作者可见
鑫驰&私享家,一家一世界。业务做不到最好,服务也要第一。
电话:5255288
QQ:506591526
地址:湖心南路

使用道具 举报

头像被屏蔽

0

收听

0

听众

31

帖子

禁止访问

注册时间
2014-3-16
精华
0
发表于 2014-3-24 08:56:21 | 显示全部楼层
提示: 作者被禁止或删除 内容自动屏蔽

使用道具 举报

头像被屏蔽

0

收听

2

听众

554

帖子

禁止访问

注册时间
2013-6-25
精华
0
发表于 2014-3-24 12:59:20 | 显示全部楼层
提示: 作者被禁止或删除 内容自动屏蔽
签名被屏蔽

使用道具 举报

头像被屏蔽

0

收听

0

听众

96

帖子

禁止访问

注册时间
2014-2-24
精华
0
发表于 2014-3-24 22:44:57 | 显示全部楼层
提示: 作者被禁止或删除 内容自动屏蔽

使用道具 举报

头像被屏蔽

0

收听

0

听众

46

帖子

禁止访问

注册时间
2014-3-13
精华
0
QQ
发表于 2014-3-25 10:06:08 | 显示全部楼层
提示: 作者被禁止或删除 内容自动屏蔽
签名被屏蔽

使用道具 举报

0

收听

0

听众

203

帖子

未认证商家

注册时间
2014-2-11
精华
0
发表于 2014-3-25 12:35:52 | 显示全部楼层
此帖仅作者可见
宝仕龙全景顶安庆专卖店
服务热线:0556-5261588  18055603799
地址:安庆市光彩四期C区7栋一层3-2号

使用道具 举报

头像被屏蔽

0

收听

1

听众

48

帖子

禁止访问

注册时间
2014-2-18
精华
0
发表于 2014-3-26 09:28:06 | 显示全部楼层
提示: 作者被禁止或删除 内容自动屏蔽
签名被屏蔽

使用道具 举报

头像被屏蔽

0

收听

0

听众

8

帖子

禁止访问

注册时间
2014-3-24
精华
0
发表于 2014-3-26 10:06:44 | 显示全部楼层
提示: 作者被禁止或删除 内容自动屏蔽

使用道具 举报

头像被屏蔽

0

收听

0

听众

8

帖子

禁止访问

注册时间
2014-3-24
精华
0
发表于 2014-3-26 10:09:53 | 显示全部楼层
提示: 作者被禁止或删除 内容自动屏蔽

使用道具 举报

0

收听

0

听众

112

帖子

E粉新星

注册时间
2013-7-25
精华
0
发表于 2014-3-26 16:28:04 | 显示全部楼层
此帖仅作者可见

使用道具 举报

0

收听

4

听众

841

帖子

未认证商家

注册时间
2011-10-14
精华
0
QQ
发表于 2014-3-26 21:52:34 | 显示全部楼层
此帖仅作者可见
更多有品位的家庭选择雷拓
一店:南翔博览中心二楼 8882133
二店:百年家居一期 5848688[/

使用道具 举报

1

收听

0

听众

447

帖子

未认证商家

注册时间
2013-5-7
精华
0
QQ
发表于 2014-3-27 08:55:01 | 显示全部楼层
此帖仅作者可见
尚美尚家冷暖工程有限公司
专业做地暖、中央空调、中央净水等等舒适家居系统
业务联系小邱:18355606187

使用道具 举报

6

收听

3

听众

921

帖子

认证商家

注册时间
2013-5-23
精华
0
QQ
发表于 2014-3-27 09:32:39 | 显示全部楼层
此帖仅作者可见

使用道具 举报

0

收听

1

听众

211

帖子

E粉新星

注册时间
2007-1-12
精华
0
QQ
 楼主| 发表于 2014-3-27 09:35:25 | 显示全部楼层
此帖仅作者可见
环保 便捷 品味 定制
科亦美多彩集成墙饰安庆营销中心
地址:安庆龙眠山路256号天柱山东路和龙眠山路交叉

使用道具 举报

头像被屏蔽

0

收听

0

听众

33

帖子

禁止访问

注册时间
2014-3-29
精华
0
QQ
发表于 2014-3-29 17:35:09 | 显示全部楼层
提示: 作者被禁止或删除 内容自动屏蔽

使用道具 举报

0

收听

0

听众

206

帖子

E粉新星

注册时间
2010-6-18
精华
0
QQ
发表于 2014-3-29 20:48:39 | 显示全部楼层
此帖仅作者可见

使用道具 举报

1

收听

7

听众

5115

帖子

E粉明星

注册时间
2009-11-24
精华
0

室内装饰设计QQ243160571

QQ
发表于 2014-3-31 08:42:58 | 显示全部楼层
此帖仅作者可见
东盛装饰  您身边的装修专家!
地址:光彩四期烩街公寓6楼(光彩大舞台隔壁)
电话:13625565176   5200845

使用道具 举报

1

收听

3

听众

684

帖子

未认证商家

注册时间
2012-2-12
精华
0
发表于 2014-3-31 09:55:53 | 显示全部楼层
此帖仅作者可见
锦致橱柜,做最适合中国人的厨房
展厅地址:南翔光彩国际家居博览中心一层61号
品鉴热线:8882250
服务热

使用道具 举报

1

收听

3

听众

684

帖子

未认证商家

注册时间
2012-2-12
精华
0
发表于 2014-3-31 09:56:20 | 显示全部楼层
此帖仅作者可见
锦致橱柜,做最适合中国人的厨房
展厅地址:南翔光彩国际家居博览中心一层61号
品鉴热线:8882250
服务热

使用道具 举报

2

收听

7

听众

3219

帖子

E粉明星

注册时间
2009-10-21
精华
0
QQ
发表于 2014-3-31 10:02:41 | 显示全部楼层
此帖仅作者可见
低 调 奢 华,品 味 生 活
爱家装饰地址:吾悦广场B-1801-1802室
爱家装饰电话: 15856537787微信

使用道具 举报

3

收听

0

听众

34

帖子

未认证商家

注册时间
2013-3-4
精华
0
发表于 2014-3-31 13:17:58 | 显示全部楼层
此帖仅作者可见

使用道具 举报

您需要登录后才可以回帖 登录 | 注册

本版积分规则

联系合作|手机版|手机APP|Archiver|

GMT+8, 2025-10-28 09:56 Powered by Discuz! X3.4

安庆E网生活网站 © 2001-2013 Comsenz Inc. ( 皖ICP备05012696号 )

QQ

安庆瑞易文化 地址:华茂1958-C7栋 联系电话:0556-5306667 联系邮箱:17779721@qq.com 互联网违法和不良信息举报电话和邮箱:0556-5306667 17779721@qq.com

皖公网安备 34080002000101号

    
快速回复 返回顶部 返回列表